Anno
2023
Luogo
Genova
Cliente
privato
Superficie
250 mq
Foto
Anna Positano
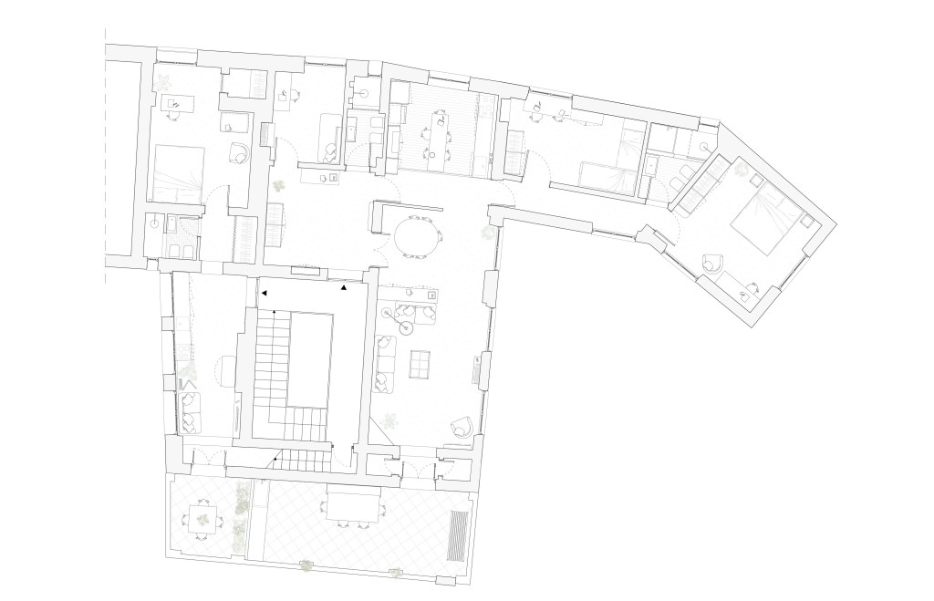
Nel centro storico di Genova, un grande appartamento di 250 mq è stato rivisitato per ospitare una giovane famiglia che ha trovato in un antico palazzo dei Rolli il luogo perfetto dove realizzare un rifugio per loro e altri viaggiatori di passaggio.
Ispirato ai viaggi e alle esperienze dei padroni di casa, l’appartamento riunisce gli spunti di vita raccolti lungo il cammino e riflette la ricchezza delle esperienze vissute.
La storicità del palazzo e i vincoli hanno imposto che venissero fatte solo piccole modifiche alla distribuzione interna per preservare la struttura originale, e in particolare i pavimenti decorati in seminato e gli stucchi del soffitto. Con interventi minimi è stato possibile suddividere l’appartamento in due unità distinte.
leggi tutto
L’appartamento principale destinato alla famiglia ospita tre camere da letto, e si caratterizza per la cucina-soggiorno che si estende senza interruzioni fino al terrazzo. Continuità resa possibile dall’eliminazione del corridoio tra cucina e sala e la rimozione di una tramezza tra sala da pranzo e salone.
Il secondo appartamento, concepito per accogliere turisti o amici in visita, segue fedelmente lo spirito e lo stile dell’unità principale.
Il progetto ha creato un involucro neutro e accogliente, un contenitore nel quale diventano protagonisti gli elementi storici e quelli più contemporanei. Le linee semplici e materiali naturali degli arredi su misura vengono accostati ai vecchi pavimenti in seminato di metà ‘800 e ai tessuti di Josef Frank usati per i divani, creando un’ambiente eclettico in cui ogni elemento è valorizzato.

























